Služby
Nové projekty
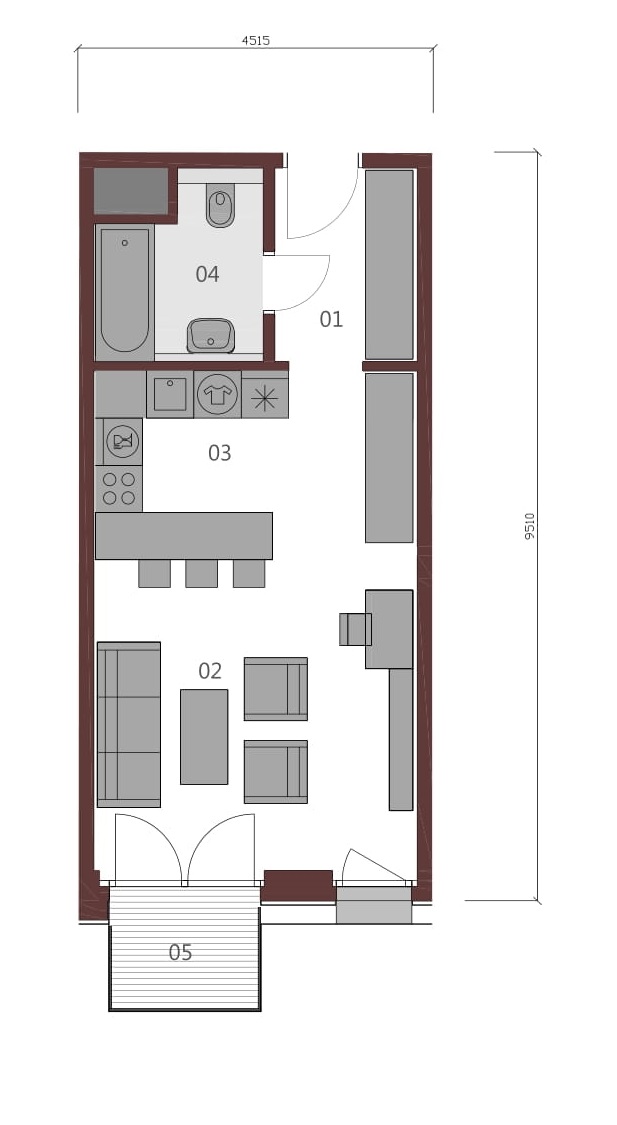
Voľný
interiér:
exteriér:
35,16 m2
2,63 m2
Mám záujem
o byt B.8.3
Stav | Voľný |
Dom | Metropolis B |
Podlažie | 8 |
Počet izieb | 1+kk |
Plocha bytu | 35.16 m² |
Celková plocha | 37.68 m² |
CENA s DPH: | 252 347 € |
Vyplňte prosím nasledujúci formulár a my vás budeme obratom kontaktovať.
alebo
Zavolajte nám: +421 948 217 888