HERRYS - Na prenájom krásny 4-izbový byt s terasou a predzáhradkou v komplexe Slnečnice - Viladomy.

Realitná kancelária HERRYS ponúka na prenájom krásny 4-izbový byt s predzáhradkou v novostavbe SLNEČNICE – Viladomy UNIQ, na ulici Fialová, v BA-Petržalka. Byt je atraktívny, zariadený kvalitným nábytkom a kuchynskou linkou s elektrospotrebičmi. K bytu je možné prenajať si aj dve parkovacie miesta v podzemnej garážovej hale. Hneď pri bytovom dome sa nachádza supermarket KRAJ. Pre lokalitu je charakteristická kompletná občianska vybavenosť a veľmi rýchle dopravné napojenie do centra mesta ako aj do Rakúska a Maďarska. 
Byt je k dispozícii na prenájom IHNEĎ.

Lokalita: Fialova ul., Bratislava – Petržalka
Rozloha: byt 89,69 m², predzáhradka s terasou 87 m²
Poschodie: prízemie/8
Orientácia: východ
Zariadenie: kompletne zariadený kvalitným nábytkom
Mesačné nájomné: 1900 EUR
Mesačné prevádzkové náklady: 300 EUR, (vrátane internetu a TV)
Parkovanie: dve vyhradené parkovacie miesta v podzemnej garáži: 200 EUR
Spolu nájomné: 2400 EUR

Viac informácií

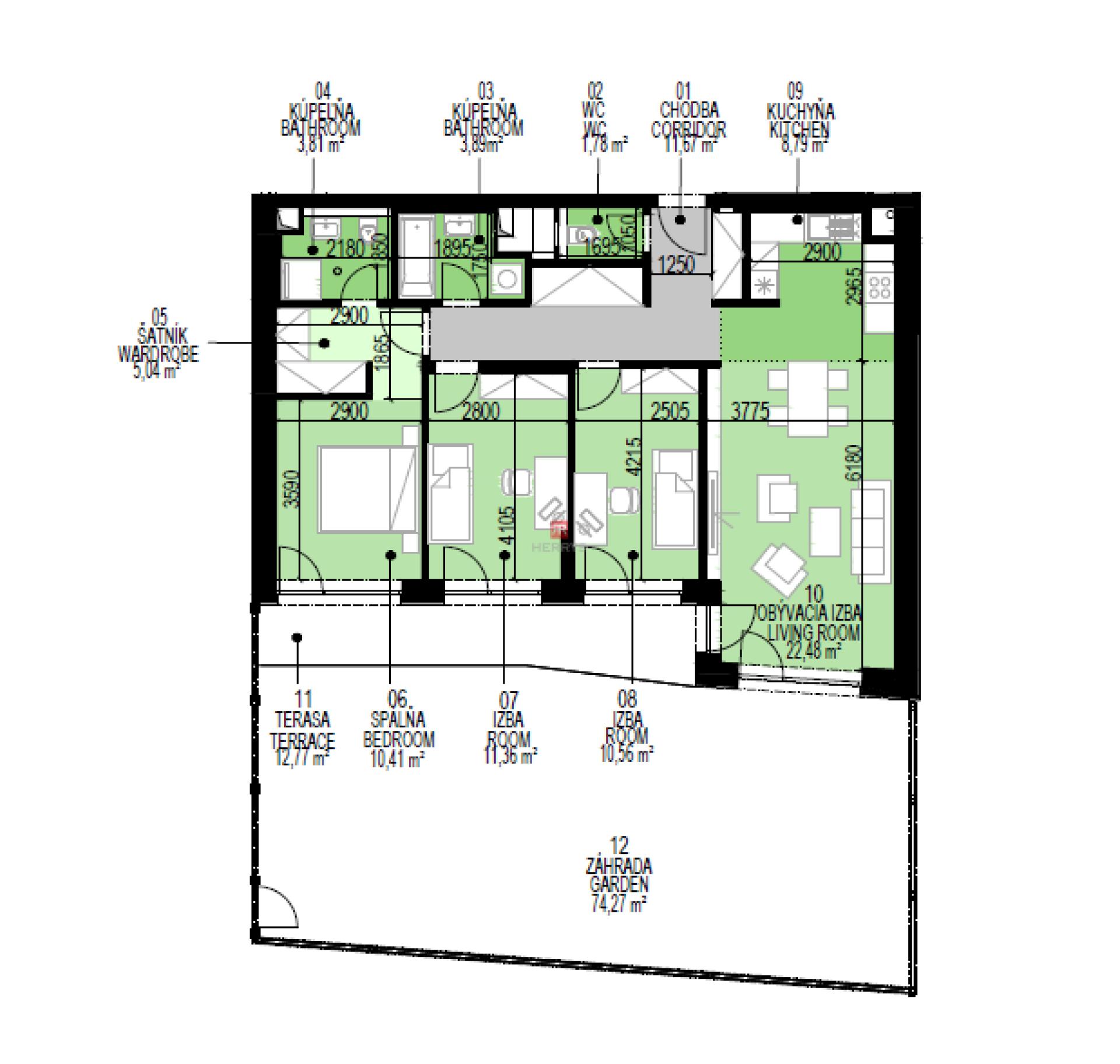
Dispozícia

Byt pozostáva z predsiene, z obývacej miestnosti s kuchynským kútom, z hlavnej spálne spojenej so šatníkom a vlastnou kúpeľňou s WC a sprchovacím kútom, z ďalších dvoch izieb, z kúpeľne s vaňou, so samostatného WC a  terasy s veľkou predzáhradkou, na ktorú sa vychádza z každej obytnej miestnosti.

Lokalita

Lokalita sa vyznačuje kompletnou občianskou vybavenosťou, v blízkosti sa nachádzajú: reštaurácie, kaviarne, supermarkety, obchody, street fitness, služby. Do mesta autom je to iba 10-15 min ako aj veľmi rýchle dopravné napojenie do Rakúska a Maďarska. V blízkosti sa nachádza hrádza, ideálna pre šport – bicykel, korčule.

Benefity
  • priestranný 4-izbový byt s výbornou dispozíciou a veľkou predzáhradkou
  • Veľmi pekne zariadený byt v populárnom rezidenčnom komplexe Slnečnice – v časti UNIQ viladomy
  • atraktívna lokalita s kompletnou občianskou vybavenosťou a rýchlou dostupnosťou do centra mesta
  • k dispozícii dve parkovacie miesta v podzemnej garáži
  • internet a TV v cene

Zaujala vás táto ponuka? Dohodnite si obhliadku

Vyplňte prosím nasledujúci formulár a my vás budeme obratom kontaktovať.
Váš maklér

Ing. Gabriela Horňáková

+421 948 940 111
Herrys s.r.o. maklér - Gabriela Horňáková

Zaujala vás táto ponuka? Dohodnite si obhliadku

Vyplňte prosím nasledujúci formulár a my vás budeme obratom kontaktovať.
Váš maklér

Ing. Gabriela Horňáková

+421 948 940 111
Herrys s.r.o. maklér - Gabriela Horňáková

Podobné ponuky

NOVINKA
4 - izbový byt | 84 m2
1 200 € /mesiac
Prenájom

Chcete predať nehnuteľnosť?

Predávame s úspešnosťou až 94%
Zistiť viac
Nechajte nám telefónne číslo a my vám zavoláme.