HERRYS - Na prenájom krásny 2-izbový, úplne nový apartmán v novostavbe METROPOLIS

Realitná kancelária HERRYS ponúka na prenájom krásny, úplne nový, doposiaľ neobývaný 2-izbový apartmán v novostavbe METROPOLIS na Bottovej ulici v novom bratislavskom downtowne. Apartmán sa nachádza na 6. poschodí a prenajíma sa kompletne vybavený nábytkom, kuchynskou linkou a elektrospotrebičmi.
Súčasťou apartmánu sú kvalitné inovatívne technológie (stropné kúrenie, chladenie, rekuperácia), ktoré zaručujú príjemné a zdravé bývanie. K dispozícii je parkovacie miesto v podzemnej garáži spojené so skladom. Apartmán je k dispozícii IHNEĎ k nasťahovaniu.
Atraktívna lokalita ponúka kompletnú občiansku vybavenosť a rýchlu dostupnosť do centra mesta.

Lokalita: ulica Bottova, Bratislava – Staré Mesto
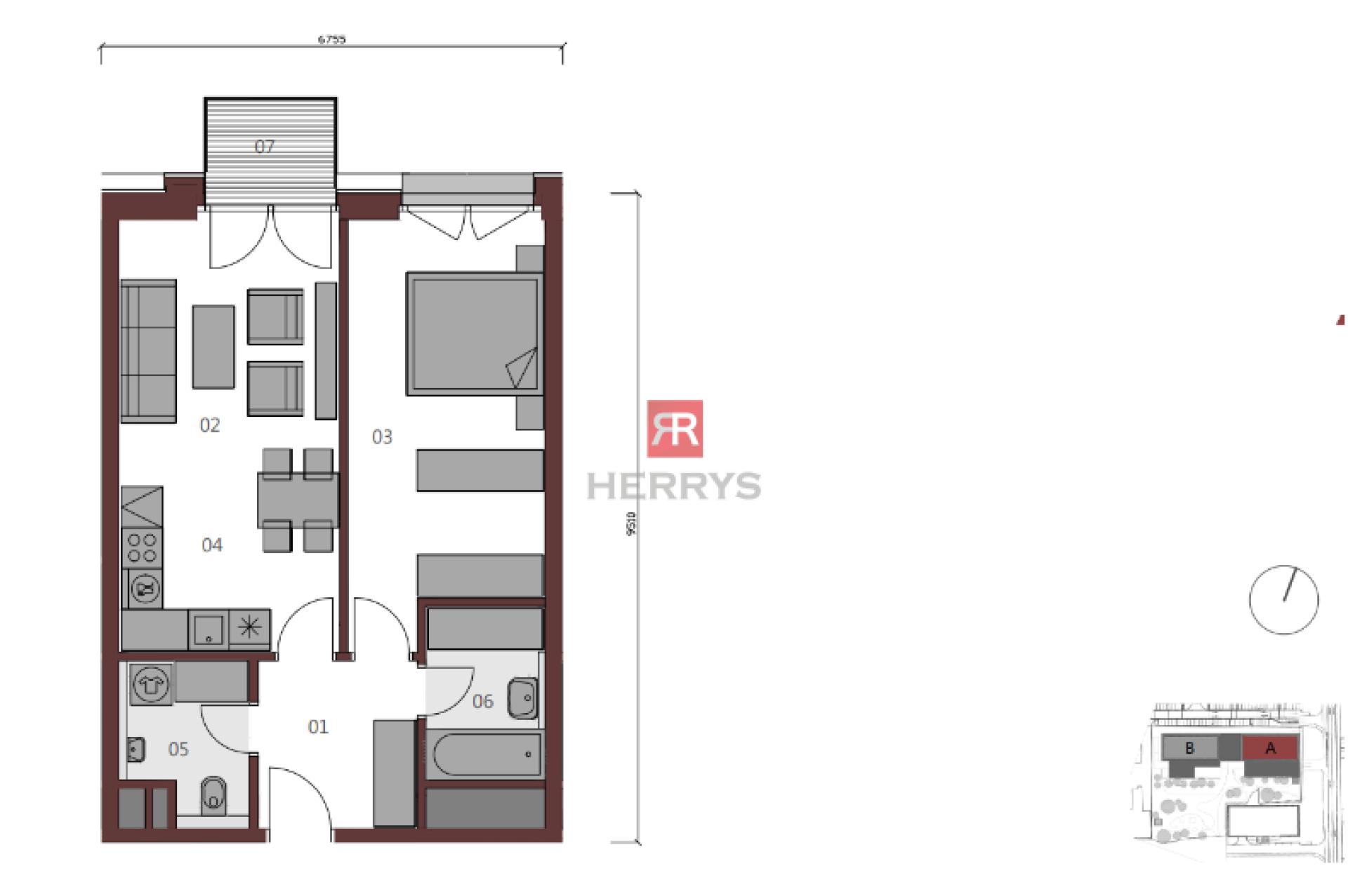
Rozloha: apartmán 51,65 m² + balkón: 2,48 m² + sklad 2,68 m²
Podlažie: 7/16
Orientácia: severo-západ
Zariadenie: kompletne zariadený
Mesačné prevádzkové náklady: 250 EUR 
Parkovanie: vyhradené parkovacie miesto so skladom v podzemnej garáži, zahrnuté v cene
VOĽNÝ IHNEĎ

Viac informácií

Dispozícia

Apartmán pozostáva z predsiene, z ktorej sa vchádza do kúpeľne s vaňou, samostatného priestranného WC, z obývacej miestnosti s kuchynským kútom, z ktorej sa vychádza na balkón a z veľkej spálne s priestranným šatníkom. V podzemnej garážovej hale, prístupnej výťahmi, sa nachádza vyhradené parkovacie miesto so skladom o rozlohe 2,68 m2.

Lokalita

Rezidenčný komplex METROPOLIS sa nachádza v prestížnej štvrti – v bratislavskom downtowne na Bottovej ulici. Táto nová dynamická štvrť spája šarm Starého Mesta s rozmanitosťou moderného sveta. V blízkosti sa nachádzajú obchodné centrá NIVY a EUROVEA, dizajnové reštaurácie, bary, obchody, dunajská promenáda a rovnako i samotné historické centrum mesta. 

Benefity
  • lukratívna adresa, v srdci nového bratislavského downtownu 
  • úplne nový, doposiaľ neobývaný apartmán s veľmi funkčnou dispozíciou a množstvom úložného priestoru
  • v cene nájmu je parkovacie miesto s pivničnou kobkou v suteréne budovy
  • najmodernejšie technológie: stropné chladenie, kúrenie, rekuperácia, tienenie
  • 24 hodinová stála služba recepcie a SBS
  • komerčné mólo s parkom 
  • dizajnové reštaurácie, bary a obchody v bezprostrednej blízkosti 
  • rýchla pešia dostupnosť do historického centra Bratislavy, k dunajskej riviére ako aj do obchodného centra NIVY a EUROVEA
  • rýchla dostupnosť hlavnej autobusovej stanici NIVY, zastávok MHD ako aj dopravná dostupnosť na mestský obchvat

Zaujala vás táto ponuka? Dohodnite si obhliadku

Vyplňte prosím nasledujúci formulár a my vás budeme obratom kontaktovať.
Váš maklér

Ing. Gabriela Horňáková

+421 948 940 111
Herrys s.r.o. maklér - Gabriela Horňáková

Zaujala vás táto ponuka? Dohodnite si obhliadku

Vyplňte prosím nasledujúci formulár a my vás budeme obratom kontaktovať.
Váš maklér

Ing. Gabriela Horňáková

+421 948 940 111
Herrys s.r.o. maklér - Gabriela Horňáková

Podobné ponuky

NOVINKA
2 - izbový byt | 42,71 m2
800 € /mesiac
Prenájom
NOVINKA
2 - izbový byt | 58 m2
840 € /mesiac
Prenájom
NOVINKA
2 - izbový byt | 60,75 m2
780 € /mesiac
Prenájom
NOVINKA
2 - izbový byt | 57 m2
1 140 € /mesiac
Prenájom
2 - izbový byt | 81 m2
990 € /mesiac
Prenájom
2 - izbový byt | 43 m2
750 € /mesiac
Prenájom

Chcete predať nehnuteľnosť?

Predávame s úspešnosťou až 94%
Zistiť viac
Nechajte nám telefónne číslo a my vám zavoláme.